Det var i mai 2025 av RA meldte at Eriksen Invest AS hadde kjøpt senterbygget som er indrefileten i Rjukan sentrum av Glenn Grumheden, ADS Sentrum. Senterbygget som i sin tid var Norges flotteste samvirkelag og som nå huser Kiwi, Gullsmed Sando og Veidemannens Jakt og Fiske. Bygget ble solgt for 27,2 millioner til Tjøme-brødrene Kenneth Normann Eriksen og Richard Eriksens eiendomsselskap.
Nå foreligger de foreløpige planene for bygget, og Sør Arkitekter AS har sendt en henvendelse for Eriksen Invest AS om å kjøpe tilleggsareal for å utvide senterbygget utover mot gårdsplassen nordover, mot det det som var kjent som Håndverkergata. Bygget er opprettet som eget selskap, Sam Eydes gate 63 AS.
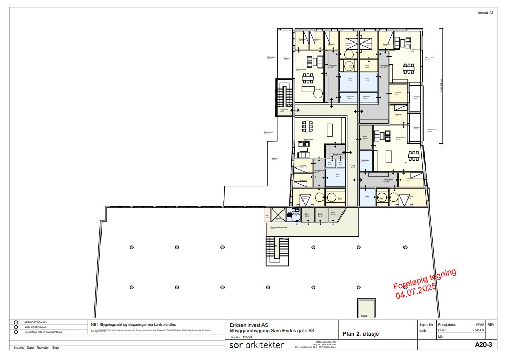
Det er lagt opp til en omfattende utvidelse av bygget som samtidig skal renoveres betydelig, på nordsiden, noe som innebærer at Kiwi Rjukan sentrum får doblet sine lokaler i størrelse til 1110 kvadratmeter. Dagligvarebutikken kommer inn et nytt butikklokale i tillegg til Sando og Veidemannen, der sistnevnte er tegnet inn i den delen av bygget som er Kiwi nå. I tillegg får Kiwi en ny lasterampe lenger nord enn de har idag.
I andre etasje i det utvidede bygget er det fortsatt lagt opp til handelslokale der Ørtings Marked var, og over Kiwi er det tegnet inn fire store leiligheter i andre etasje, på 142, 127, 124 og 123 kvadratmeter bruttoareal, der de to «minste» på 124 og 123 m2 i tillegg vil få balkonger på henholdsvis 76 og 20 kvadratmeter.
Det er lagt opp til heis og nye toaletter i bygget, og nye ankomster. Kort sagt vil det innvendige av bygget ikke være til å kjenne igjen når de er ferdige. Men det betinger altså at de får kjøpe tilleggseiendom til det som heter Sam Eydesgate 63, med gnr/bnr 125/24 av Tinn kommune som sitter på eiendommen på nordsiden.
Bak Eriksen Invest AS står brødrene Kenneth Normann Eriksen (f. 1969) og Richard Eriksen (f. 1971) som holder til på Tjøme utenfor Tønsberg der de driver Normann Investeringsselskap AS som eneeier. Kenneth Eriksen er også eier og styreleder i en rekke eiendomsselskaper, deriblant Eriksen Invest AS, Brygga Eiendom Tønsberg AS, Borre Eiendomsinvest AS og har nå opprettet selskapet Sam Eydes gate 63 AS. Det er Richard Eriksen som er daglig leder for selskapet, mens Kenneth Normann Eriksen er styreleder, og de to jobber sammen i eiendomsselskapene.

